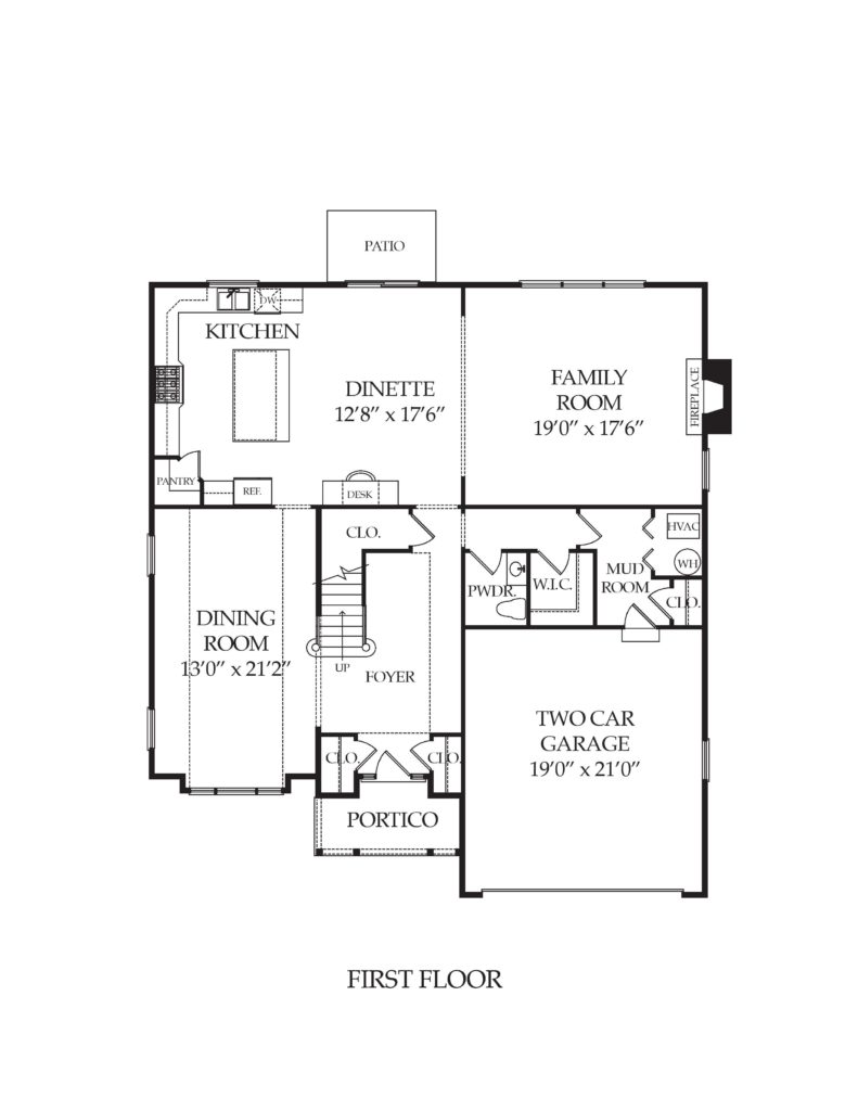
Rendered floor plans allow you and your clients to best visualize the layout of your home or building. Whether you are looking to clean up your blueprints with a nice black & white floor plan, or you are looking for marketing material for your new community, restaurant, commercial building, or real estate listing and are needing a 2d or 3d furnished floor plan, we have you covered!










